Die Erschließung der nordargentinischen Kordilleren mittels einer Bleichertschen Drahtseilbahn für Güter und Personen
(Chilecito-La Mejicana Wire Ropeway, Mina La Mejicana) - Teil 2
Von Oberingenieur G. Dieterich, Leipzig.
Chilecito-La Mejicana Wire Ropeway - Teil 1
Chilecito-La Mejicana Wire Ropeway - Teil 2
Chilecito-La Mejicana Wire Ropeway - Teil 3
Chilecito-La Mejicana Wire Ropeway - Teil 4
Von dieser auf 1075 m Meereshöhe liegenden Station geht die Bahn mit einer anfänglich sehr geringen Steigung von 5 vH, scheinbar sich ins Unendliche verlierend, nach dem Gebirge zu, Fig. 9. Von dem Alto Blanco aus steigt sie dann um 464 m bis zu den ersten Hügeln des Santa Florentina bei km 9, wo sich die erste Zwischenstation (Station 11), Fig. 10 bis 12, befindet. Da sich die Tragseile auf der ganzen Länge von 9 km nicht in einem einzigen Stück unter gleichmäßiger Spannung halten lassen, ist die Strecke durch drei Spannvorrichtungen in vier annähernd gleiche Teile geteilt. Die erste Zwischenspannvorrichtung hat zwei paar Kasten mit großen Betongewichten, mittels deren die beiden nach oben laufenden und die beiden von oben herunterkommenden Seile gespannt werden. Die nächste Unterbrechung der Tragseile befindet sich bei einer festen Ankerstation, wo die Seilenden mit Hülfe von Muffen über Spannböcken verankert sind. Von hier gehen die Seile nach der nächsten Zwischenspannvorrichtung, die wieder vier Gewichtkasten enthält. Endlich sind die Tragseile in der oberen Endstation wieder fest verankert, wie es mit Ausnahme der Station V überall geschehen ist. Die Wagen werden von einem Tragseil auf das andre auf festen Hängeschienen übergeführt, ohne dass das Zugseil unterbrochen ist. Ähnliche Anordnungen wiederholen sich bei allen Einzelstrecken, so dass die Stationen von den Spanngewichten unbelastet bleiben.

Fig. 9. Ansicht der Strecke von Station I gegen das Gebirge

Fig. 10 bis 11. Station II bei km 9

Fig. 12. Station II bei km 9
Die erste Zwischenstation hat eine Antriebmaschine von 35 PS nebst Wasserrohrkessel zum Betriebe der Strecke I. Ferner sind dort Wohn- und Schlafräume für das Personal. Reparaturwerkstätten und ein seitliches Ausziehgleis angelegt. Die Spannvorrichtung für das Zugseil der Strecke II ist ebenfalls in diese Station verlegt.
Von Station II geht die Drahtseilbahn an den Abhängen des Durazno y Las Higueras weiter, überschreitet mit einer Spannweite von 465 m bei km 14,5 den Amarillo-Fluss und gelangt mit einer weiteren Steigung von 465 m zur Station III (Parron) bei km 17,5. Diese Station, Fig. 13 bis 15 hat ebenfalls eine Antriebmaschine von 35 PS mit zugehörigem Kessel für die untere Strecke, Wohnräume für das Personal, aber keine Werkstätte und kein Ausziehgleis. Sie liegt auf annähernd 2000 m Höhe, und ihre Einrichtung auf einem sehr steil abfallenden Bergrücken war schon mit ganz bedeutenden Schwierigkeiten verknüpft. Die mittlere Steigung der zu ihr führenden Strecke beträgt etwa 5,2 vH.

Fig. 13 und 14. Station III

Fig. 15. Station III
Von der Station Parron geht es nun immer am rechten Abhange des Cerro Alto bis zur Station IV (Rodeo de las Vacas) bei km 20,5, wobei ein Höhenunterschied von 565 m überwunden wird, so dass die durchschnittliche: Steigung dieser dritten Zwischenstrecke schon 18,5 vH beträgt. Station IV, Fig. 16 und 17, unterscheidet sich insofern von Station III, aus der die Strecke III unter einem Winkel herausgeht, als sie einen doppelten Antrieb für das Zugseil hat, der sowohl die Strecke III wie die Strecke IV bedient. Die Antriebmaschine ist gerade so groß wie alle andern, da es sich auf dieser Station nur darum handelt, beim Anlaufen der Bahn das Zugseil in Bewegung zu setzen; denn bei vollbelasteter Bahn ergibt sich schon ein Kraftüberschuss von 75 PS, der durch Bremsen vernichtet werden muss, soweit er nicht zu andern Zwecken benutzt wird. Im übrigen hat diese Station wieder kleine Aufenthaltsräume.

Fig. 16 und 17. Station IV
Zwischen Station IV und V liegt einer der schwierigsten Teile der Bahn, obwohl die Steigung nicht einmal ganz 5 vH beträgt. Von Station IV auslaufend überschreitet die Bahn die sogenannten sieben Abhänge, Fig. 18, und geht dann durch einen Tunnel von 300 m Länge, der gebohrt werden musste, um keine allzu schroffe Bruchstelle für das Seil zu erhalten, mit zwei Spannweiten von 258 und 540 m über die Schlucht von San Andreas weiter an den Abhängen des Cerro negro bis zur Station V (Cueva de Romero), Fig. 19 und 20, im ganzen einen Höhenunterschied von 150 m überwindend. Station V hat keine Antriebmaschine, dagegen zwei Spannvorrichtungen für die von oben und von unten kommenden Zugseile und eine Spannvorrichtung für die von oben herunterkommenden Tragseile der Strecke V im übrigen wieder einen kleinen Aufenthaltsraum.

Fig. 18. Ansicht der Strecke zwischen Rodeo de las Vacas und Cueva de Romero mit Stütze von 50 m Höhe

Fig. 19 und 20. Station V
Nun beginnt die Bahn, unter ganz gewaltigen Steigungen an den Abhängen des Cielito Rodado y Cabrera Moreno nach der Station VI, Fig. 21 und 22, emporzuklettern. Auf dieser nur 1,5 km langen Strecke werden 460 m mit einer Steigung von rd. 29 vH überwunden. Die Station VI hat wieder Antriebmaschinen für die Strecke V und eine Spannvorrichtung für die folgende Strecke VI, Fig. 23, die zunächst mit einer Spannweite von 670 m den Rio del Rodado überschreitet und bei km 26,5 eine zweite Spannweite von rd. 575 m aufweist. Die Endstation dieser Strecke, Cueva de Iltanes, Fig. 24 bis 26, bei km 27,8 liegt schon auf beinahe 4000 m Meereshöhe. Durch Strecke VI wird ein Höhenunterschied von 675 m mit beinahe 30 vH Steigung überwunden. Von hier aus beginnt der Teil der Bahn, in dem die Temperatur stets unter dem Gefrierpunkt bleibt. Die mittlere Wintertemperatur beträgt hier etwa — 20°. Aus Station VII kommend, welche Betriebsmaschinen, Kesselhaus und Aufenthaltsräume sowie Zugseil-Spannvorrichtung für die Strecke VII enthält, überschreitet die Bahn mit einer Spannweite von annähernd 800 m die Allada frente à Los Bayos, Fig. 27. Sie bildet die einzige Brücke, die alleinige Verbindung des hier beginnenden Minenbezirkes mit dem tiefer liegenden Gebirge. Bei km 31 wird die Station Bayos (VIII), Fig. 28 und 29, in einer Meereshöhe von 4600 m erreicht. Die Steigung dieser Strecke VII beziffert sich auf rd. 15 vH.

Fig. 21 und 22. Station VI

Fig. 23. Strecke VI

Fig. 24 und 25. Station VII, 3912 m über Meereshöhe

Fig. 26. Station VII, 3912 m über Meereshöhe

Fig. 27. Große Spannweite bei Allada frente à Los Bayos
(Im Hintergrund Station VIII)

Fig. 28 und 29. Station VIII
Wieder unter einem Winkel aus Station VIII auslaufend, die den Antrieb für beide Strecken, Zugseil-Spannvorrichtung für die obere Station und wie Station VII ein Ausziehgleis enthält, erreicht die Bahn mit zwei großen Spannweiten von rd. 600 und 900 m, die den Höhepunkt der Entwicklung der ganzen Anlage bilden, bei km 33,7 die Zwischenstation bei Bello Plan, Fig. 30 und 31, von wo aus eine kurze Anschlussbahn nach den Famatina-Minen bei Upulungos geht; s. Fig. 32 und 33.

Fig. 30 und 31. Station bei Bello Plan

Fig. 32 und 33. Endstation
Die gesamten Konstruktionsteile der ganzen Bahn, sowohl die Stützen für die Tragseile wie auch die Gerüste für die Stationen und Zwischenspannvorrichtungen, sind in Eisen ausgeführt. Die Gegend ist sehr holzarm; große Nutzholzwälder gibt es überhaupt nicht, so dass Holz, wie es in Europa sehr häutig zur Herstellung der Stationen und Stützen benutzt wird, fast höhere Kosten als Eisen verursacht haben würde. Zudem musste auch mit den klimatischen und atmosphärischen Einflüssen gerechnet werden, sowie mit dem Umstände, dass die Unterhaltungsarbeiten und natürlich auch die Unterhaltungskosten hölzerner Gerüste bei einer derartig verwickelten Anlage sehr bedeutend geworden wären.
Die Gleise bestehen mit Ausnahme der Strecken innerhalb der Stationen sowie der Zwischenspannvorrichtungen und Verankerungen, woselbst 260 mm hohe Hängeschienen, Fig. 34, verwendet worden sind, fast überall aus Drahtseilen. Nur an zwei Stellen sind die Drahtseile durch auf niedrigen Gerüsten gelagerte Schienen ersetzt worden; einmal bei der Durchführung der Linie durch den Tunnel, Fig. 35 und 36, das andremal bei der Überschreitung einer besonders ungünstig gelegenen Bergkuppe auf Strecke VII zwischen zwei Spannvorrichtungen, Fig. 37.

Fig. 34. Stationseinlauf auf Rodeo de las Vacas

Fig. 35 und 36. Tunnel zwischen Station IV und V
Die Unterstützungen, auf denen die Tragseile ruhen, haben die bekannte Pyramidenform. Sie sind alle nach einer normalen Konstruktion hergestellt und unterscheiden sich fast nur in der Höhe, s. Fig. 38 bis 40. Während an einigen Stellen nur 3 bis 5 m Stützenhöhe nötig sind, schwankt die Höhe auf dem größten Teil der Strecke zwischen 5 und 10 m, steigt aber stellenweise bis zu 30 und 40 m auf; so sind z. B. vor der Station II eiserne Türme von 40 m, mit dem Unterbau annähernd 50 m Höhe und etwa 10 bis 12 m Fußbreite errichtet worden.

Fig. 37. Linienführung mit Schienen auf der Strecke VII

Fig. 38. Stütze von 3 m Höhe

Fig. 39. Stütze von 4,5 m Höhe

Fig. 40. Stütze von 18 m Höhe
Die mittleren Entfernungen der Stützen betragen auf annähernd waagerechten oder nur schwach geneigten Strecken etwa 100m; wie schon erwähnt, kommen aber auch Spannweiten bis 900 m vor, so dass die Zahl der Stützen insgesamt etwa 275 beträgt. Die Eisenteile für die Stationen, Stützen und Zwischenspann- sowie Verankervorrichtungen wiegen etwa 2000 t.
Ganz besondere Aufmerksamkeit war der Wahl der Tragseile zuzuwenden. Hier konnten nur zwei Arten von Seilen in Frage kommen, einmal die Spiralbauart, zum andern die Konstruktion voll verschlossener Seile 1). Die sogenannten Simplexseile, Hohlseile, mussten von vornherein ausscheiden, weil sie sich bei starker Überlastung auf den Schuhen leicht platt drücken und bei weitem nicht die Sicherheit bieten wie die beiden erstgenannten Arten. Der Bruch eines einzigen Drahtes in einem solchen Hohlseil ist imstande, das ganze Gefüge an der betreffenden Stelle vollständig zu lockern, weil der innere Kern fehlt, auf dem die äußeren Drähte der verschlossenen Vollseile eine sichere Auflage finden. Es würde ja natürlich am vorteilhaftesten gewesen sein, bei der ganzen Anlage nur voll verschlossene Seile zu verwenden; doch war man, wenn sich auch
1) s. Z. 1902 S. 1771.
die argentinische Regierung in bezug auf die Kosten sehr entgegenkommend gezeigt hat, an eine bestimmte Summe gebunden, so dass man sich schließlich mit Rücksicht auf die bedeutenden Mehrkosten, die jene Seile verursacht hätten, dazu entschloss, für den Hauptteil der Strecke Spiralseile zu verwenden und verschlossene Seile nur bei stark beanspruchten Strecken, Bergübergängen, zu benutzen. Schließlich wählte man Spiraltragseile von 150 kg/qmm Bruchfestigkeit, also sogenannte harte Tragseile, und zwar für die fünf oberen Strecken mit 35 mm Dmr. für das Lastseil und 28 mm Dmr. für das sogenannte Leerseil, und auf den beiden untern Teilstrecken mit 30 bezw. 25 mm Dmr. An besonders schwierigen Gobirgsübergängen sind einzelne Stücke, insgesamt etwa 1000 m, verschlossenen Seiles von 30 mm Dmr. für die Lastseile und von 22 mm Dmr. für die Leerseile eingefügt.
Zur Verbindung der einzelnen Seillängen unter einander sind die bekannten Bleichertschen Ringkeilkupplungen verwendet worden 1).
1) s. Z. 1902 S. 1771.
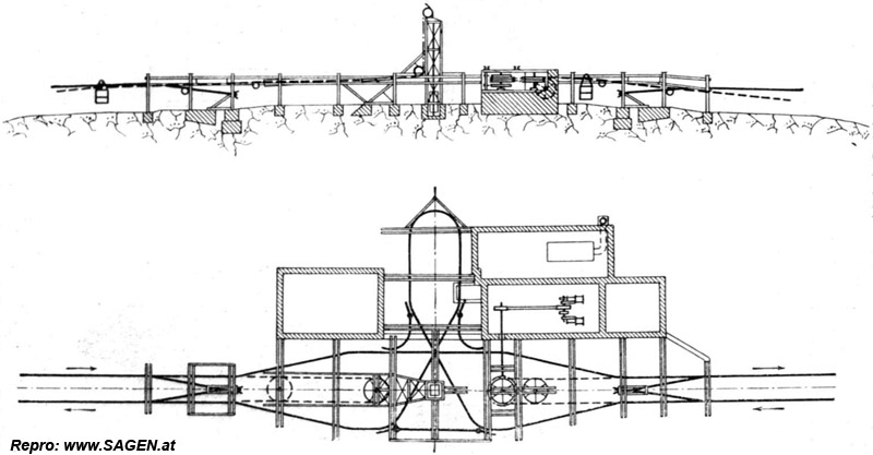
Wie schon bei der Beschreibung der Strecke gesagt worden ist, wird die durch Tragseile und Zwischenkupplung gebildete Laufbahn, das eigentliche Gleis, an dem einen Ende fest verankert und durch eine auf das andre Ende einwirkende Spannvorrichtung unter stets gleichmäßiger Spannung gehalten. Zum Anschluss dieser Verankerungen und Spannvorrichtungen an das Tragseil wird dieselbe Ringkeilkupplung verwendet wie zum Vorbinden der Seilstücke unter einander. Bei Teilstrecken von geringerer Länge genügt je eine Verankerung und eine Spannvorrichtung, die mit den Stationen kombiniert wird, wie dies bei den Teilstrecken V und VI der Fall ist. Die Länge der übrigen Teilstrecken ist aber zu groß, und darum sind hier die schon erwähnten mittleren Spannvorrichtungen eingeschaltet worden, Fig. 41. Sie sind teils mit Verankerungen vereinigt, teils als Doppelspannvorrichtungen ausgebildet und dienen alsdann, wie beschrieben, zum Anspannen der beiden angrenzenden Strecken. Alle mittleren Spannvorrichtungen lassen die Wagen frei durchfahren, so dass keinerlei Bedienung an diesen Punkten erforderlich wird. Im ganzen hat die Bahn 19 Verankerungs- und Spannvorrichtungen.

Fig. 41. Spannvorrichtung zwischen zwei Stationen
Chilecito-La Mejicana Wire Ropeway - Teil 1
Chilecito-La Mejicana Wire Ropeway - Teil 2
Chilecito-La Mejicana Wire Ropeway - Teil 3
Chilecito-La Mejicana Wire Ropeway - Teil 4
Quelle: G. Dieterich, Die Erschließung der nordargentinischen Kordilleren mittels einer Bleichertschen Drahtseilbahn für Güter und Personen, in: Zeitschrift des Vereins Deutscher Ingenieure, 3. November 1906, Nr. 44, Band 50, S. 1769 - 1778, S. 1826 - 1831, S. 1867 - 1870.
Rechtschreibung behutsam angepasst: Wolfgang Morscher.
© digitale Version: www.SAGEN.at